◎日々のこと
| 2021.9.25 | ローラアシュレイが映える「終の棲家」- S様邸ご改装のこと(3) |
|---|

before after
シンプルモダンな内装は、床材、建具など木目の落ち着いたものに替わりました。
(改装前の様子と工事中の様子は、「日々のこと」9月5日と9月10日分に掲載しています。)
壁クロスも、明るい白から、しっとりとぬくもりのある色合いのものになりました。


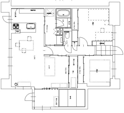
玄関収納は収納量が増え、「飾る場」のカウンターがあるコの字型になりました。





ダイニング側にもたくさんの収納量を確保しました。
神棚を上部に想定した特注造作家具は、キッチン面材と同じものですっきりとした仕上げに。
ダイニングテーブルは食事の場、仕事の場、読む場、書く場・・・とても大切な場所です。
暮らしを快適にする収納・・・スムーズな出し入れ、定位置管理、すっきりと片付くと気持ちいいです。
収納家具の中にも、いい位置のコンセント。
家具は納める以上の道具になります。

トイレ、浴室、洗面など水回り設備も、機能性、メンテナンス性の優れたものに。
帰宅されてすぐに、手洗い・うがいが出来るよう、帰宅動線上に洗面位置を移動。
洗濯機はキッチンと浴室の間に移動。
動線が整理され、広めの洗面脱衣室の天井には上げ下げできる室内干しのポール。
いつもの仕事がスムーズに進みます。
洗面脱衣室造作家具は清潔な白。
カウンターの上下に収納。下部は体重計がすっきり納まります。
浴室は全面珊瑚石柄の高級感あふれるデザイン。
1日の終わりに、ほっとひとりになる時間・・・こころも身体も、リラックスしてくださると嬉しいです。

リビング脇の洋室には、畳コーナー。
畳下の部分は全て跳ね上げ、たっぷり収納確保。
奥の壁、天井際にはピクチャーレール。
床の間的なコーナーとなっています。
畳コーナーのアクセントクロスはカーテン(ウィリアムモリス イチゴ泥棒)に合わせて選ばれました。

